Wir sind der Meinung, der Alltag ist oft genug öde und langweilig. Deshalb haben wir unserer Ferienwohnung "CABINET" bei der Neugestaltung ganz viel Farbe gegeben. Sie dürfen gespannt sein ...
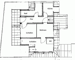
Unsere neue Ferienwohnung verfügt über einen separaten Eingang, eine komplett eingerichtete Küche mit Spülmaschine, Essplatz sowie ein im Landhausstil eingerichtetes gemütliches Wohnzimmer mit Flachbild-SAT-TV und einer Hifi-Anlage. Zum Schlafen stehen Ihnen ein Doppelzimmer mit eigenem WC und Waschbecken sowie ein Doppelzimmer mit separatem Bad (DU/WC) mit Tageslichtfenster zur Verfügung.
Ob Frühstück beim Sonnenaufgang oder Grillabend im Sonnenuntergang: Ein weiteres Highlight der Wohnung ist die große und teilweise überdachte und möblierte Sonnenterrasse, von der sie einen herrlichen Blick in die Weinberge von Neef genießen können.
